About our building
Reuben College is located next to the Museum of Natural History in the heart of the University Science Area, and is just a short walk from University Parks and Oxford's city centre. The college is housed in stunning, architecturally-renowned buildings from the late 19th and early 20th centuries. The buildings have undergone a major programme of refurbishment to create purpose-designed, flexible and accessible spaces for college life, including areas for quiet study, group meetings, social occasions, and offices. You can find more information in our Access Guide.
Although Reuben is a 21st-century college, our heritage buildings date from 1860 to 1934 and provide a wonderful environment, full of character, for our students, staff and Fellows.
- Reuben College President Lionel Tarassenko
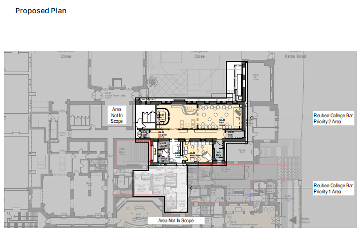
Our new college building features a Graduate Common Room, dining hall, library, games room, multi-faith room, cafeteria, snug (quiet space), and lecture room. In addition, a student bar and adjacent music room featuring a baby grand piano opened in 2024. The main dining hall, often a focal point of the college experience, is in a newly converted adjoining building that features vaulted ceilings and exposed timber typically be found in older, more traditional Oxford colleges. The "green oasis" provided by the University Parks almost next door to the College is perfect for students' recreational activities. Dedicated residential accommodation is offered at separate sites at Farndon Court and Winchester Road, which are a 10-20-minute walk away.
Uniquely for an Oxford college, some of the building spaces are shared with the University's Radcliffe Science Library, which is situated on the top floor of the Grade-II-listed Jackson and Worthington buildings. Students will benefit greatly from access to the specialist knowledge and expertise of library and museum staff located in the buildings, and digital resources to support teaching, learning and public engagement. A new Collections Teaching and Research Centre for the University’s museums is housed in the basement, giving our students access to the public engagement expertise of museum curators. With unique objects of antiquity from the University’s museums stored in its basement levels, Reuben College quite literally has the history of the world in its foundations, and the future of the world in its sights.
Building layout
Image gallery - architectural images and building work photos
Building works photos kindly provided by fjmtstudio